Contactez votre agence
concernant
Appartement 4 pièces 74 m²
3 rue des Saussaies
75008 Paris
Le logement
Appartement 4 pièces 74 m²
VILLIERS LE BEL - 95400
Ancien
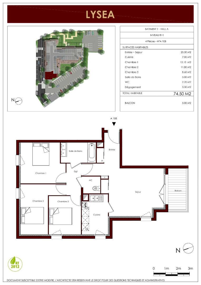
Au coeur d'une résidence récente et sécurisée, nous vous présentons ce spacieux appartement 4 pièces, situé au 1er étage avec ascenseur. Vous serez séduit par son grand séjour lumineux ouvrant sur un agréable balcon, parfait pour vos moments de détente. La cuisine, indépendante et fonctionnelle, offre de belles possibilités d'aménagement. Côté nuit, vous profiterez de trois chambres confortables, et d'une salle de bain et wc séparé. Deux places de parking en sous-sol viennent compléter ce bien. L'appartement est vendu loué, avec un loyer hors charges de 1 134,15 euros par mois, représentant une excellente opportunité d'investissement locatif clé en main. Le bail en cours prendra fin le 30 décembre 2025, ce qui permet de notifier un congé au locataire au plus tard le 30 juin 2025, conformément aux délais légaux. Prix de vente : 240 000 euros FAI. N'attendez plus pour en savoir plus ou organiser une visite ! Contactez-nous dès aujourd'hui !
240 000 €
(Honoraires à charge du vendeur)
Surface
74 m²
74 m²
Typologie
T4
T4
Prestations
- Parking
Chambres
3
3
Le plan
VILLIERS LE BEL
Référence
14019
Soumis au régime de la copropriété
Non
Procédures en cours
Non
Le bilan énergétique
Consommations énergétiques
Logement économe
Logement énergivore
La consommation énergétique de ce bien est de 0 kWhEP/m2.an
Logement énergivore
La consommation énergétique de ce bien est de 0 kWhEP/m2.an
Émissions gaz à effet de serre
Faible émission de GES
Forte émission de GES
Les émissions de gaz à effet de serre pour ce bien sont de 7 kgeqCO2/m2.an
Forte émission de GES
Les émissions de gaz à effet de serre pour ce bien sont de 7 kgeqCO2/m2.an
Les informations sur les risques auxquels ce bien est exposé sont disponibles sur le site Géorisques : www.georisques.gouv.fr