Déposez votre candidature
pour un RDV de visite
pour un RDV de visite
Appartement à louer
Toulouse - 31200
Location
Contacter Mme DELACOUR 06X09X32X05X34
mail maylis.delacour@pichet-adb.fr
TOULOUSE - Quartier Grand Selve
Pour tout contact , appelez le 07x82x96x78x16 ou bien déposez votre dossier sur www.pichet.fr.
Les honoraires locatifs seront revalorisés au 01/01/2026 conformément à l'arrêté du 17/07/2025.
La résidence Aromatik prend place au nord de Toulouse dans un quartier résidentiel. Doté de nombreux équipements scolaires (école et crèche), commerces et services essentiels à votre quotidien. La proximité du métro B (arrêt Trois Cocus, 17mn à pied), les différentes lignes de bus et les accès à la rocade vous permettront de vous déplacer facilement vers le centre de Toulouse. À quelques minutes en voiture, vous accéderez également au centre-ville d'Aucamville avec son marché traditionnel.
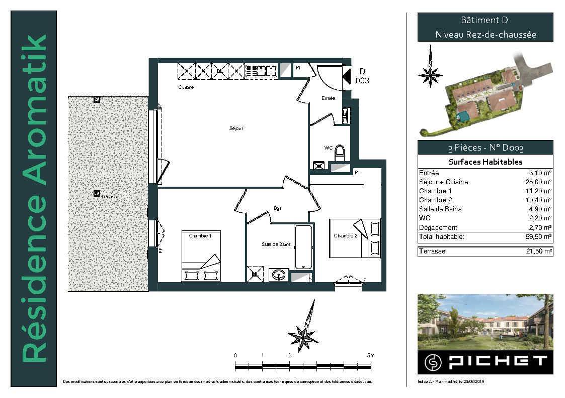
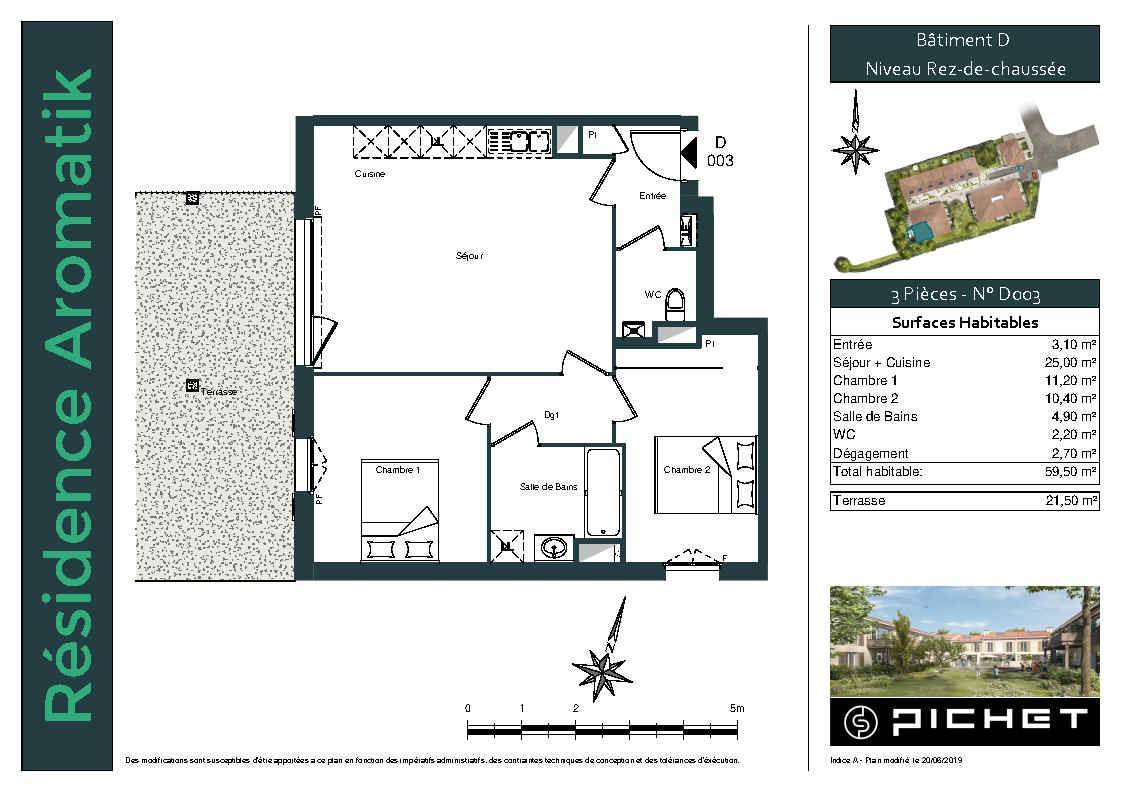
Appartement de type 3 au rez de chaussée, composé d'une entrée avec placard, cuisine aménagée, vaste séjour ouvert sur une terrasse, deux chambres, salle de bains et des WC séparés.
Le chauffage sera assuré par une chaudière murale à condensation par logement et la production d'eau chaude sera assurée par la chaudière gaz.
Local vélos, place de parking.
Batiment BBC, Norme RT 2012.
LOGEMENT SOUS REGIME DE DEFISCALISATION PINEL.
Les informations sur les risques auxquels ce bien est exposé sont disponibles sur le site Géorisques : www.georisques gouv.fr.
Les informations sur les risques auxquels ce bien est exposé sont disponibles sur le site Géorisques : www. georisques. gouv. fr
Montant du loyer
858 € / mois C.C
858 € / mois C.C
Dont
88 € de charges locatives (provision donnant lieu à une régularisation annuelle)
Honoraires de location à la charge du locataire
780.65 € 1
Dépôt de garantie
769.04 €
Dont prestation d'état des lieux
180.29 € 2
Surface
59.5 m²
59.5 m²
Typologie
T3
T3
Adapté personnes à mobilité réduite
Oui
Oui
Prestations
- Terrasse
Disponibilité
Immédiate
Référence
382041
Le bilan énergétique
Date de réalisation du diagnostic : 08/01/2023
Consommations énergétiques
Logement économe
Logement énergivore
La consommation énergétique de ce bien est de
53
kWhEP/m2.an
Logement énergivore
La consommation énergétique de ce bien est de
53
kWhEP/m2.an
Émissions gaz à effet de serre
Faible émission de GES
Forte émission de GES
Les émissions de gaz à effet de serre pour ce bien sont de
10
kgeqCO2/m2.an
Forte émission de GES
Les émissions de gaz à effet de serre pour ce bien sont de
10
kgeqCO2/m2.an
Le plan
Toulouse
1 Exemple d'honoraires TTC pour un 59.5 m² sur la résidence présentée comprenant la visite, la constitution du dossier et la rédaction du bail, soit 10,09~ €/m2
2 Prestation d'Etat des lieux de 180.29 € : honoraires TTC pour un 59.5 m² sur la résidence présentée pour la réalisation des états des lieux d'entrée et de sortie, hors prestation d'huissier, soit 3,03€/m2.
Les informations sur les risques auxquels ce bien est exposé sont disponibles sur le site Géorisques : www.georisques.gouv.fr