Déposez votre candidature
pour un RDV de visite
pour un RDV de visite
Appartement à louer Cenon - 33150
Location
DISPONIBLE PROCHAINEMENT
benoit.salviat@pichet-location.fr
TOUTES CHARGES INCLUSES (EAU + CHAUFFAGE)
CENON
Les Allées Pelletan bénéficient d'une situation exceptionnelle avec de nombreuses facilités pour se déplacer vers le centre de Bordeaux, notamment grâce au tramway A au pied de la résidence. 5 lignes de bus sont aussi à proximité, des stations de VCub, la gare de Cenon Pont Rouge (TER) mais aussi la rocade bordelaise. Nichée sur les hauteurs de Cenon, entre les quartiers pavillonnaires de Palmer, Saraillère et le centre-ville commerçant, notre résidence est le compromis parfait entre sérénité et dynamisme. L'environnement compte de nombreux commerces et services ainsi que le centre commercial de la Morlette, situé à moins de 5 minutes à pied avec ses multiples boutiques et restaurants.
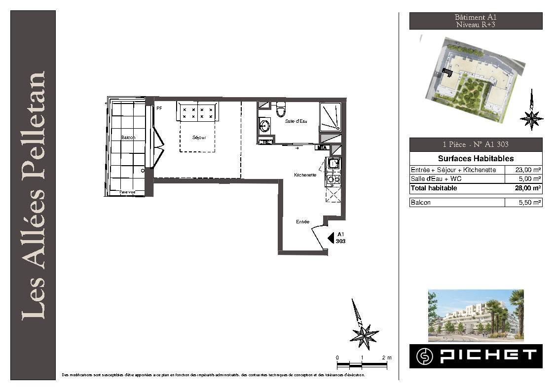
Appartement de type 1 au 3ème étage composé d'une entrée, une cuisine aménagée et équipée, pièce de vie ouverte sur un balcon, salle d'eau avec WC.
Ascenseur, local à vélo, place de parking.
La production d'eau chaude et le chauffage seront assurés par une sous-station raccordée au réseau de chaleur urbain (compris dans les charges mensuelles)
POUR TOUTE DEMANDE DE VISITE, RDV SUR LE SITE PICHET / LOUER, AFIN DE DEPOSER VOTRE CANDIDATURE SUR LE BIEN DE VOTRE SELECTION.
Montant estimé des dépenses annuelles d'énergie pour un usage standard compris entre 140€ et 240€ (estimation réalisée à partir des prix énergétiques de référence des années 2021 2022 2023)
« Les informations sur les risques auxquels ce bien est exposé sont disponibles sur le site Géorisques : www.georisques.gouv.fr »
Montant du loyer
595 € / mois C.C
595 € / mois C.C
Dont
70 € de charges locatives (provision donnant lieu à une régularisation annuelle)
Honoraires de location à la charge du locataire
367.36 € 1
Dépôt de garantie
525 €
Dont prestation d'état des lieux
84.84 € 2
Surface
28 m²
28 m²
Typologie
Studio
Studio
Étage
3
3
Adapté personnes à mobilité réduite
Oui
Oui
Prestations
- Ascenseur
Disponibilité
Immédiate
Référence
427791
Le bilan énergétique
Date de réalisation du diagnostic : 02/02/2026
Consommations énergétiques
Logement économe
Logement énergivore
La consommation énergétique de ce bien est de
66
kWhEP/m2.an
Logement énergivore
La consommation énergétique de ce bien est de
66
kWhEP/m2.an
Émissions gaz à effet de serre
Faible émission de GES
Forte émission de GES
Les émissions de gaz à effet de serre pour ce bien sont de
2
kgeqCO2/m2.an
Forte émission de GES
Les émissions de gaz à effet de serre pour ce bien sont de
2
kgeqCO2/m2.an
Le plan
Cenon
1 Exemple d'honoraires TTC pour un 28 m² sur la résidence présentée comprenant la visite, la constitution du dossier et la rédaction du bail, soit 10,09~ €/m2
2 Prestation d'Etat des lieux de 84.84 € : honoraires TTC pour un 28 m² sur la résidence présentée pour la réalisation des états des lieux d'entrée et de sortie, hors prestation d'huissier, soit 3,03€/m2.
Les informations sur les risques auxquels ce bien est exposé sont disponibles sur le site Géorisques : www.georisques.gouv.fr