Déposez votre candidature
pour un RDV de visite
pour un RDV de visite
Appartement à louer Bois-d'Arcy - 78390
Location
BOIS D'ARCY
Au cœur du quartier de la Croix Bonnet, un secteur vert et dynamique, la résidence Le Belvédère prend place au bord de la Rigole des Clayes. Desservi par la RN12, le quartier offre de nombreux équipements publics de qualité tels qu'un groupe scolaire, un espace petite enfance, des équipements sportifs en lisière de forêt ou encore de nombreux commerces.
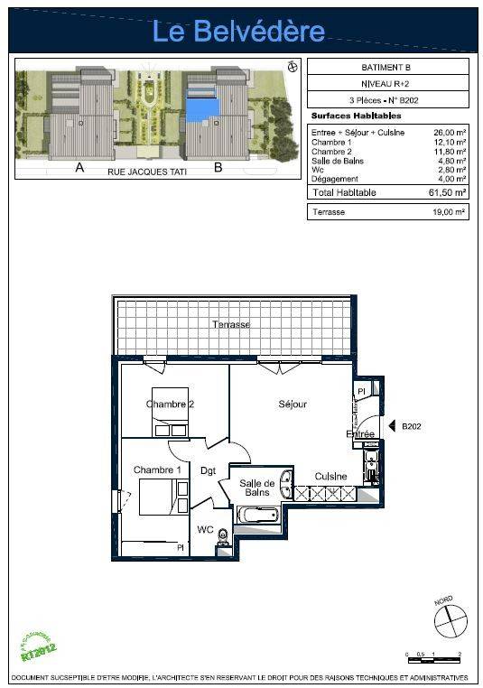
Appartement de type 3p au 2ème étage et composé de :
une entrée avec placard, un séjour avec cuisine aménagée, une terrasse, deux chambres dont une avec placard, une salle de bains, un wc séparé.
1 place de parking en sous sol, ascenseur.
Le chauffage et la production d'eau chaude sont individuels gaz.
Bâtiment Conformité RT2012.
Montant estimé des dépenses annuelles d'énergie pour un usage standard : entre 490 € et 700 € (estimation réalisée à partir des prix énergétiques de référence de l'année : 2022)
POUR TOUTE DEMANDE DE VISITE, RDV SUR LE SITE PICHET / LOUER, AFIN DE DEPOSER VOTRE CANDIDATURE SUR LE BIEN DE VOTRE SELECTION.
Les informations sur les risques auxquels ce bien est exposé sont disponibles sur le site Géorisques : www. georisques. gouv. fr
Montant du loyer
1 137 € / mois C.C
1 137 € / mois C.C
Dont
130 € de charges locatives (provision donnant lieu à une régularisation annuelle)
Honoraires de location à la charge du locataire
806.89 € 1
Dépôt de garantie
1007 €
Dont prestation d'état des lieux
186.35 € 2
Surface
61.5 m²
61.5 m²
Typologie
T3
T3
Étage
2
2
Adapté personnes à mobilité réduite
Oui
Oui
Prestations
- Parking
- Ascenseur
- Terrasse
Disponibilité
Référence
449037
Le bilan énergétique
Date de réalisation du diagnostic : 19/04/2026
Consommations énergétiques
Logement économe
Logement énergivore
La consommation énergétique de ce bien est de
63
kWhEP/m2.an
Logement énergivore
La consommation énergétique de ce bien est de
63
kWhEP/m2.an
Émissions gaz à effet de serre
Faible émission de GES
Forte émission de GES
Les émissions de gaz à effet de serre pour ce bien sont de
11
kgeqCO2/m2.an
Forte émission de GES
Les émissions de gaz à effet de serre pour ce bien sont de
11
kgeqCO2/m2.an
Le plan
Bois-d'Arcy
1 Exemple d'honoraires TTC pour un 61.5 m² sur la résidence présentée comprenant la visite, la constitution du dossier et la rédaction du bail, soit 10,09~ €/m2
2 Prestation d'Etat des lieux de 186.35 € : honoraires TTC pour un 61.5 m² sur la résidence présentée pour la réalisation des états des lieux d'entrée et de sortie, hors prestation d'huissier, soit 3,03€/m2.
Les informations sur les risques auxquels ce bien est exposé sont disponibles sur le site Géorisques : www.georisques.gouv.fr