Contactez votre agence
concernant
Appartement 1 pièce 28 m²
7 boulevard de la Plage
33120 Arcachon
Le logement
Appartement 1 pièce 28 m²
GUJAN MESTRAS - 33470
Ancien
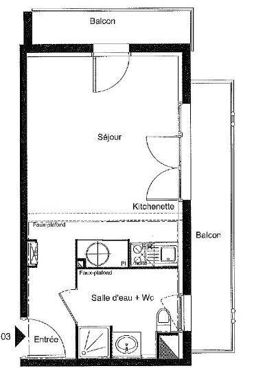
A Gujan Mestras, trés proche gare, commerces, un appartement type Studio d'environ 27 m² avec deux Balcons et un parking en sous sol. L'appartement possède du potentiel: une entrée, une piece d'eau avec wc et fenetre et une pièce à vivre avec cuisine type kitchenette: l'ensemble est lumineux. Immeuble bien entretenu, calme et avec adresse idéale. Copropriété de 462 lots - dont 173 lots habitation. (Pas de procédure en cours). Charges annuelles : 872 euros.
139 000 €
(Honoraires à charge du vendeur)
Surface
28 m²
28 m²
Typologie
T1
T1
Prestations
- Parking
- Balcon
Salle d'eau
1
1
Le plan
GUJAN MESTRAS
Référence
11123
Soumis au régime de la copropriété
Oui
Nombre de lots
462
Montant moyen annuel de la quote-part des charges provisionnelles
872 €
Charges annuelles
872 €
Montant de la taxe foncière
666 €
Procédures en cours
Non
Le bilan énergétique
Consommations énergétiques
Logement économe
Logement énergivore
La consommation énergétique de ce bien est de 151 kWhEP/m2.an
Logement énergivore
La consommation énergétique de ce bien est de 151 kWhEP/m2.an
Émissions gaz à effet de serre
Faible émission de GES
Forte émission de GES
Les émissions de gaz à effet de serre pour ce bien sont de 6 kgeqCO2/m2.an
Forte émission de GES
Les émissions de gaz à effet de serre pour ce bien sont de 6 kgeqCO2/m2.an
Les informations sur les risques auxquels ce bien est exposé sont disponibles sur le site Géorisques : www.georisques.gouv.fr