Déposez votre candidature
pour un RDV de visite
pour un RDV de visite
Appartement à louer
Dammarie-les-Lys - 77190
Location
DAMMARIE LES LYS
Située en coeur de ville, la résidence L Odyssee est à proximité des commerces et des services. À seulement 10 minutes à pied du futur bus Tzen 2 et de la gare de Melun qui permet de relier Paris en moins de 30 minutes.
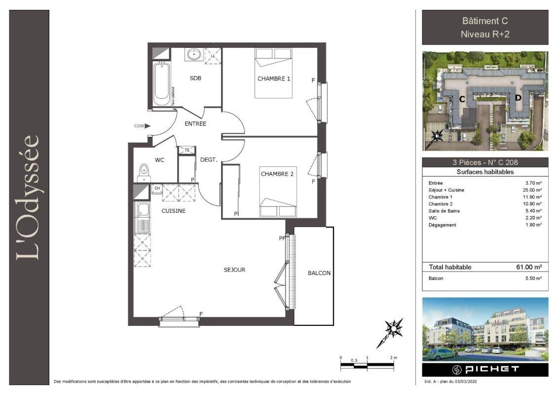
Appartement de type 3 au 2ème étage offrant une entrée avec placard, une cuisine aménagée, un séjour ouvert sur un balcon, deux chambres avec placards, une salle de bains et des WC séparés.
Le chauffage sera assuré par une chaudière murale à condensation et la production d'eau chaude par la chaudière gaz.
Ascenseur, local 2 roues, place de parking.
Bâtiment basse consommation (BBC).
Norme RT 2012
POUR TOUTE DEMANDE DE VISITE, RDV SUR LE SITE PICHET / LOUER, AFIN DE DEPOSER VOTRE CANDIDATURE SUR LE BIEN DE VOTRE SELECTION.
Les honoraires locatifs seront revalorisés au 01/01/2026 conformément à l¿arrêté du 17/07/2025
Les informations sur les risques auxquels ce bien est exposé sont disponibles sur le site Géorisques : www. georisques. gouv. fr
Montant du loyer
925 € / mois C.C
925 € / mois C.C
Dont
75 € de charges locatives (provision donnant lieu à une régularisation annuelle)
Honoraires de location à la charge du locataire
793 € 1
Dépôt de garantie
850 €
Dont prestation d'état des lieux
183 € 2
Surface
61 m²
61 m²
Typologie
T3
T3
Étage
2
2
Adapté personnes à mobilité réduite
Oui
Oui
Prestations
- Ascenseur
Disponibilité
Référence
381987
Le bilan énergétique
Date de réalisation du diagnostic : 24/12/2025
Consommations énergétiques
Logement économe
Logement énergivore
La consommation énergétique de ce bien est de
68
kWhEP/m2.an
Logement énergivore
La consommation énergétique de ce bien est de
68
kWhEP/m2.an
Émissions gaz à effet de serre
Faible émission de GES
Forte émission de GES
Les émissions de gaz à effet de serre pour ce bien sont de
14
kgeqCO2/m2.an
Forte émission de GES
Les émissions de gaz à effet de serre pour ce bien sont de
14
kgeqCO2/m2.an
Le plan
Dammarie-les-Lys
1 Exemple d'honoraires TTC pour un 61 m² sur la résidence présentée comprenant la visite, la constitution du dossier et la rédaction du bail, soit 10~ €/m2
2 Prestation d'Etat des lieux de 183 € : honoraires TTC pour un 61 m² sur la résidence présentée pour la réalisation des états des lieux d'entrée et de sortie, hors prestation d'huissier, soit 3€/m2.
Les informations sur les risques auxquels ce bien est exposé sont disponibles sur le site Géorisques : www.georisques.gouv.fr